BLOK 340 SERIES Floorplan

/BLOK 340 SERIES Floorplan
BLOK 340 SERIES Floorplan 2025-08-08T16:34:00+00:00

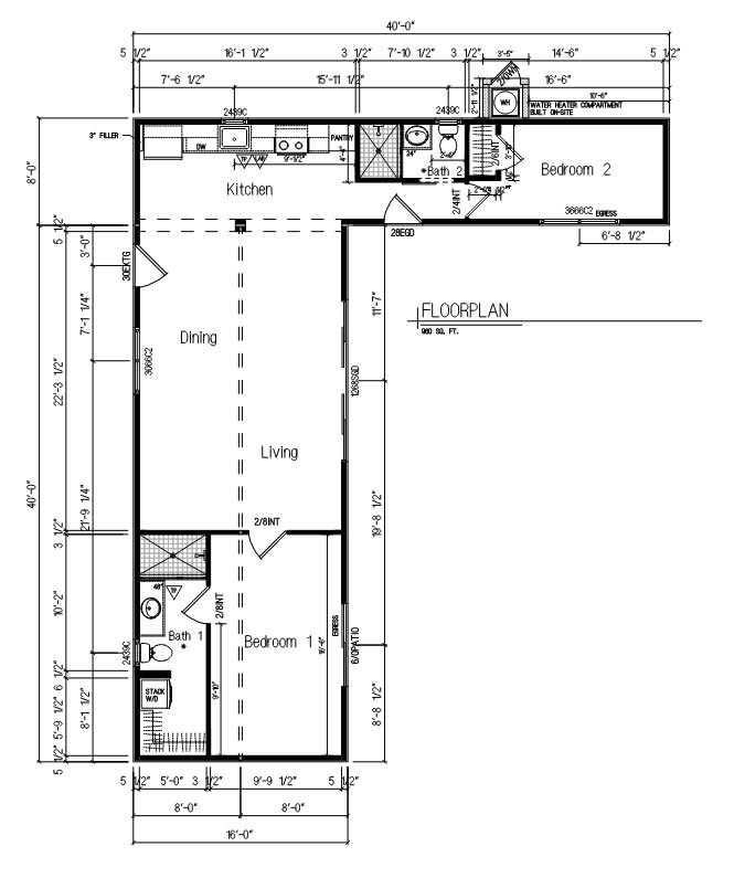
BLOK 340 SERIES – L SHAPE ADU-HOME (3) 40′ SHIPPING CONTAINERS – SAVE TIME – INCLUDES CA STATE APPROVED BUILDING PLANS!
960 Exterior Sqft. – ADU-HOME with Full Living Room, 2 Bedrooms, 2 Bathrooms and Kitchen.
Price $190K– Configuration & Finish Options Upon Request. Production Time 12-14 Weeks

WHAT DO YOU NEED? – IF YOU WANT SOMETHING SPECIAL – WE’LL BUILD IT FOR YOU!

BUILDING STANDARDS

2022 IBC, IRC, IECC, UPC, IMC, and IFC Compliant, Wind & Seismic Loads Calculated in Accordance with ASCE 7-10, Residential Energy Check Compliant, Third-Party Approved Quality Control Program, Inspected by a Nationally Accredited Third Party Inspecting Agency, Designs & Plans by American Multi-State Licensed Structural Engineers and Architects,

INSULATION SYSTEM + FRAMED
Internal Steel Frame. Insulating PU Spray Foam, Premium Bio-wood Flooring, Standard Drywall Sheet-Rock Paneling, Everything-Proof Barrier Layer: Fire, Water, Rodent, Insect, Mold 

INTERIOR & EXTERIOR  FINISHINGS

Eco Friendly Treated Sub Floor, Hydro-Shield Laminate Floor, Marine Grade Industrial Enamel Paint For Exterior Steel Surfaces. Conforms to AWWA D102-03.

WINDOWS AND DOORS
High Quality Milgard Windows & Doors. Secure & Energy Efficient. Includes A Life Time Warranty

FULL BATHROOM
Sink, Vanity & Faucet, Tile Floor & Walls, Modular Shower Panel System, Mirrored Medicine Cabinet, Energy Efficient Ergonomic Toilet, Built-in Ceiling Fan.

KITCHEN & APPLIANCES
Double Bowl Sink & Pull Out Faucet, Kitchen Cabinets, Tile Backsplash, Kitchen Countertop, Smoke & Carbon Monoxide Detectors. Designed for Free Standing Range, Built-In Microwave, Counter Depth Refrigerator – (Appliances Not Included)

INTERNAL SYSTEMS
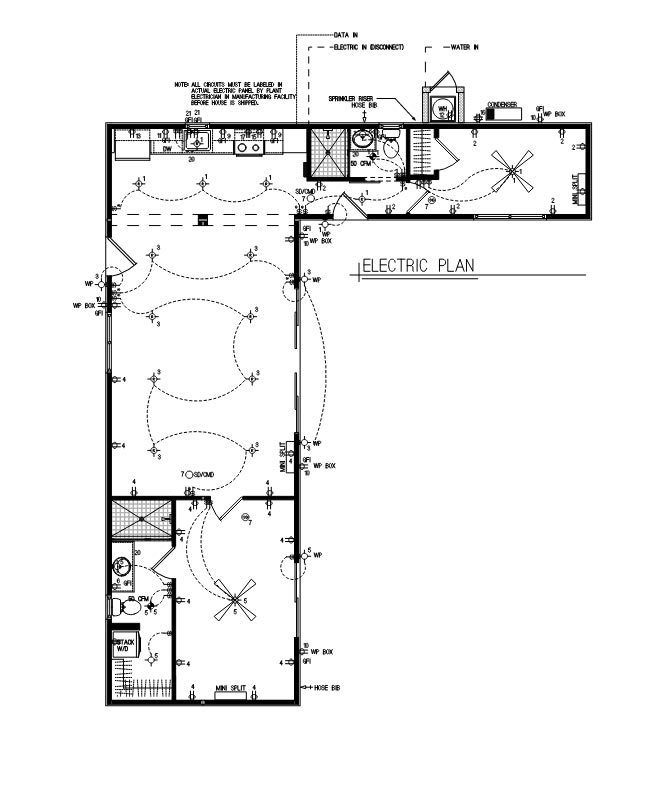
Dual Mini Split HVAC , Full Electrical Load System & Wiring -200amp, Full Pex Water System, Full PVC Plumbing System, Wiring For Cable Hi-Speed Internet.